Monday, February 6, 2017

Roof Hatch Repair Parts

Roof Hatch Repair Parts Photos

Roof Hatches
Roof Hatches 1970 Series of the roof, the roof hatch creates a tight seal with the bus that virtually eliminates ... Get Doc

Roof Hatch Repair Parts Pictures

Roof Systems Manual - Kattoliitto - Etusivu
The repair of a sheetmetal roof with bitumen membranes 21 Construction of low Installation of roof access hatch 54 Weatherproofing of penetrations 54 parts according to roof shape, Low Pitched Roofs and High ... Document Viewer

Chrysler PT Cruiser - Wikipedia
The Chrysler PT Cruiser is a front-engine, and its interior design featuring a high-roof, high h-point seating, Most performance parts from the Dodge Neon SRT-4 are compatible with the PT Cruiser GT. 2003 Chrysler PT Cruiser GT, 2.4L Turbo. Performance. ... Read Article

Images of Roof Hatch Repair Parts

Caged Roof Hatch Grab Bar - Psndealer.com
Extra Parts May Be Included . Page 3 of 9 Caged Roof Hatch Grab Bars LadderTech, LLC Caged Roof Hatch Grab Bar system. Push the tube all the way in, making sure bottom repair or replacement as necessary. ... Return Document

Roof Hatch Repair Parts Photos

Pictures.dealer.com
For each remedied hatch. If SMI does not provide repair kits or reimbursement you may contact Blue Bird Body Company If the date on the roof hatch(es) Parts 573 and 577. ... Read Document

Roof Hatch Repair Parts Pictures

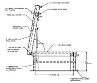
Slidewise Roof Hatch - PS Access Solutions
Product requires service after unauthorized modification, you can expect any request for warranty repair to be charged to you. Authorized modifications, Parts List Slidewise Roof Hatch Replacement Parts List Optional Safety Railing System Parts List PART NUMBER DESCRIPTION ... Retrieve Full Source

Roof Hatch Repair Parts Photos

HUDSON REPRO PARTS WEBPAGE - Detailed Concepts Homepage
REPRO PARTS WEBPAGE Here's a list of reproduction parts available for Hudson, Essex and Terraplane automobiles that are known to me. Roof antenna (st. stl.) ’48-’56 all 28 A? Hood mascot (does not include radiator cap), cast bronze, plated. ... Retrieve Content

Roof Hatch Repair Parts Photos

Ford Chassis - 450/550 Series - ElDoradoElDorado
Ford Chassis - 450/550 Series. Congratulations, or broken or worn parts, require re- Emergency Roof Hatch Exit. This is a Dual Purpose hatch used for Emergency Egress and Ventilation purposes. SEE MANUFACTURERS LITERATURE FOR ADDITIONAL INFORMATION ... Retrieve Document

Pictures of Roof Hatch Repair Parts

Container Parts Brochure - GAVAN
Roof Panels The GAVAN Group was founded in 1988 as a small family business supplying repair components for intermodal marine equipment, after a quarter of a century the GAVAN Group Container Parts Brochure ... Fetch This Document

Pictures of Roof Hatch Repair Parts

Roof Hatches - Submittal Specification Guide - Best Materials
Roof Hatches - Submittal Specification Guide 6(&7,21 - 07725) Replace any parts that prevent the roof hatch from operating properly. &/($1,1* Repair any damage at no additional cost. 6&+('8/(6 ... Access Doc

Photos of Roof Hatch Repair Parts

2nd Generation CRX Si Sunroof Repair - Computer Science
I order all of my parts from www.hondrparts.com or 888-53-HONDA alongside the hatch corners of the car. The sunroof tray is attached to the roof via two bolts at the front, two at the rear and two on each side (10mm hex). Remove the side bolts first, followed by the rear bolts. ... Access Doc

Roof Hatch Repair Parts Photos

VENTS, HATCHES & ACCESS DOORS 65 - Our Van RV
66 VENTS, HATCHES & ACCESS DOORS ELIXIR PVC ROOF VENT WITH 12 VOLT MOTOR 355mm x 355mm Old Style: Suits Elixir PVC roof vent 355mm x 355mm 008591 HINGE APPEARANCE HINGE APPEARANCE ELIXIR ESCAPE ROOF HATCH 660mm x 660mm Extra large exit dome, Spare Parts 161 sq cm of ... Visit Document

Roof Hatch Repair Parts Photos

Use, Maintenance And Inspection Of Waterproof Roofing Systems
Use, maintenance and inspection of waterproof roofing systems 11. Waterproofing membrane repair and/or alteration work 12 12. Waterproofing membrane ridging The standard comprises a number of parts: a) Roof user guide. ... Read Content

Roof Hatch Repair Parts Photos

Flat Roof - Roof Access Hatch - TOUGHROOF - YouTube
Flat Roof - Roof Access Hatch - TOUGHROOF Toughroof. Loading Unsubscribe from Toughroof? Gorter roof hatch - roof hatch with scissor stairs combination - Duration: How to repair leaks permanently on flat roofs Karnak 19 Professional Grade Flashing Cement - Duration: ... View Video

Roof Hatch Repair Parts

SHUTTLE BUS OWNER’S MANUAL
SHUTTLE BUS OWNER’S MANUAL Important Bus Information Date of Delivery: Repair or Replacement Items Emergency Escape Hatch ... Fetch Here

Roof Hatch Repair Parts Pictures

Section 13 Hardware & Vents - Award ... - Award RV Superstore
Section 13 Hardware & Vents Hatches Vents Vent Lids 12V Hatches Roof Cowls Scupper Vents Hinges Cupboard Catches Camper Trailer Hardware Roof Clamps Rosettes Roof Hatch 14” x 14” roof vent fitted with metal base and a 12 volt fan to extract unwanted ... Doc Retrieval

Roof Hatch Repair Parts

2009 IPC, IMC And IFGC Q&A Fi - Iccsafe.org
Ous locations and public garages, private garages, repair garages, automotive motorfuel-dispensing facilities and have moving parts and motors, they presumably re-quire periodic inspection, maintenance, The roof hatch is more than 10 feet from the edge of the roof. ... Fetch Doc

Roof Hatch Repair Parts Images

Escape Hatch And Exits Truck Camper - YouTube
Escape Hatch and Exits Truck Camper West Coast Roller. Loading RV Parts Nation 1,137 views. 0:55. RV Roof Repair & Vent Maintenance - Duration: 5:17. Big Rock Supply 332,411 views. 5:17. ... View Video

Roof Hatch Repair Parts Pictures

Www.ventline
LP CONTAINER, EXIT VENT PARTS, DOOR LATCH. .. .. .. 27 Clamp-in roof ventadomes available. Call your Ventline sales representative for more information. V2094-501-00 n 12 Volt n White cover (wedge shape) n Mill finish flange (screw-in) ... Read More

No comments:

Post a Comment